存在多年的南昌限行政策,致使不少本地车主养成了出门前瞧一瞧日历的习惯。然而,真正令这一规则繁杂的是,它将外地车牌也归入了管理范畴。而且,在时间以及区域方面做出了极为精细的区分。如若你弄不明白具体何处可行、何处不可行,极易吃到罚单。
限行区域的核心划分
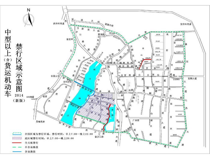
南昌限行区域主要分两大块,一块是针对所有机动车的尾号限行,一块是针对货车的区域禁行,尾号限行集中在老城区核心路段,像八一大道、阳明路等地,货车限制范围大得多,昌东大道、昌南大道、生米大桥和英雄大桥围起来区域,每日7点至23点不让中型以下货车通行。
在南昌,存在这样的情况,除了这个特定时间段实施限行之外,还有特殊区域是全天候禁止货车通行的。比如说被会展路,赣江中大道,世贸路围起来的红谷滩中心区的那一小块区域,以及由学府南大道,丰和南大道围起来的红角洲区域,货车在这些地方 24 小时都不可以进入。除此之外,像八一大桥,朝阳大桥,红谷隧道这些过江通道,同样是全天禁止货车通行的。
外地车的限行规则
南昌对外地车牌的限制相较于本地车更为严格,尤其处于早晚高峰时段。八一大桥、南昌大桥在早上7点至9点半、下午4点半至8点这两个时间段,禁止外地车通行。阳明路的豫章路口至二经路口段,以及八一大道的福州路口至中山路口段,从早上7点至晚上8点半均不让外地车通行。
这一规则所意味的是,假设你驾驶的乃是外地车辆,若想要于早晚高峰时段从红谷滩前往老城区,那么就仅仅能够经由英雄大桥或者生米大桥通行。交管部门于这些实施限行的路段均安装了卡口抓拍系统,一旦违规驶入便会被自动记录下来。需要予以特别留意的是,以赣A以及赣M开头的本地牌照并不受这些限制,然而交管部门同样建议本地车辆尽量通过分流走其他大桥的方式,以此减轻八一大桥以及南昌大桥的压力。
地铁施工期间的调整
多年来南昌持续进行地铁修建,限行政策伴随施工进度持续产生相应调试,地铁2号线施工阶段,中心城区限行范围出现一定扩展,此主要是为配合围挡施工以及道路改造之举,施工时段,阳明路、八一大道等主干道通行能力降低,因而限行时间也相应得以延长了。
循着地铁线路逐个通车,部分路段的限行举措也历经优化。像某些路段于施工完毕后切换至正常通行状态,然而核心区域现行的尾号限行以及外地车限行依旧留存。这表明南昌的限行政策已然从旨在配合施工的临时举措,转变为长期施行的交通管理办法。
货车限行的详细规定
南昌针对货车的管理可谓极其严格,自2018年1月1日起开始施行的新规,将诸多以往能够通行的道路予以禁止通行。除了先前谈到的区域限行之外,中型以上货车另外存在单独的禁行范围。这些禁行区域主要汇聚于城区主干道以及过江通道,其目的在于降低大车对城区交通以及居民生活产生的影响。
在南昌,对于那一些需要进入限行区域的货车而言,是设置了例外情形的,就像运送鲜活农产品的、包括市政抢修方面的以及环卫作业等特殊车辆呢,这类车能够去提前申请通行证,可是对普通货运车辆来讲,要是没有通行证,在处于限行时段的时候进入到禁行区域,便会被电子警察抓拍下来,好多货车司机正是由于不熟悉新规定,在昌东大道以及昌南大道这些属于边界的路段被处罚过。
路面设施的同步调整
限行政策并非独自施行,南昌交管部门还同时调整了路面停车以及车道设置,阳明路、民德路、八一大道、福州路这些路段先前的路边停车泊位被予以取消,其目的在于使道路更为通畅,与此同时,福州路还增添了非机动车道,以使骑电动车之人拥有专门可通行之路,从而减少与汽车的冲突。
此外,阳明路施工围挡两侧的公交车专用道被取消,八一大道施工围挡两侧的公交车专用道同样被取消。并且,在八一大道江西宾馆至妇幼保健院这一段,增设了一股宽度为4米的专用通道。此专用通道是专门供沿线单位的车辆出入使用的。这些细节方面的调整表明南昌在实行限行举措的同时,也在思索办法来优化道路资源,尽可能地降低对沿线单位以及居民的影响。
绕行线路的实际选择
交管部门向外地车推荐了四条绕行线路,这四条线路覆盖了东南西北四个方向,对于东面来的车,不管是从南昌东收费站下来的,还是从昌万公路过来的,都建议走英雄大桥或者生米大桥。对南面从105国道、320国道开来的车而言,走昌南大道到生米大桥最为便利。西面从昌西南、昌西收费站来的车,直接走生米大桥过江。北面从昌北收费站和105国道来的车,走英雄大桥是最佳选择。
实际上,这些绕行方案是经过了相关测算的,其目的旨在达成让外地车辆避开核心限行区域,借助外围的过江通道来实施分流。要是你所驾驶的是外地车辆,那么最好预先规划好路线,切不可等到抵达八一大桥桥头之时才发觉无法通行。当下,导航软件通常都会发出限行提醒,然而在某些信号欠佳的地方,依旧得依靠自身牢记清楚。
你认为南昌这么一种针对外地车辆以及本地车辆不同对待的限行举措合理与否呢,欢迎于评论区域留言去分享你的看法,也能够将你被处罚那种经历讲述出来以便大家把它当作警戒。






